运河天城国际写字楼
0
元/㎡
别名:运河天城国际写字楼
写字楼
楼盘均价:
0
元/㎡
开盘时间:
2014年建成
开发商:
杭州运河集团投资发展有限公司
新盘地址:
【浙江省 杭州市】浙江省杭州市上城区机场路一巷9号
楼盘类型:
标准写字楼
建筑面积:
137000.00㎡
物业公司:
南都物业服务集团股份有限公司
更多楼盘信息
变价通知我
算房贷
变价通知我
取消
提交
优惠活动
9.5折钜惠
获取优惠
获取优惠
取消
提交
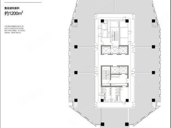
主力户型(2)
查看全部
楼盘动态
查看更多楼盘动态
地址及周边配套
地址:
浙江省杭州市上城区机场路一巷9号
地址
浙江省 杭州市
(
浙江省杭州市上城区机场路一巷9号
)
商业
交通
教育
医疗
周边楼盘
宇航大厦
上海市虹口区
0
元/㎡
尚凯商务大厦
上海市杨浦区
0
元/㎡
海外人才创业大厦
上海市杨浦区
0
元/㎡
天脉科技园
上海市浦东新区
0
元/㎡
裕华大厦
上海市徐汇区
0
元/㎡
中骏广场
上海市闵行区
0
元/㎡
首页
预约看房
电话咨询
预约看房
取消
提交
预约看房
客服小Q
推荐
Q房网 新房咨询顾问
预约看房
领取成功!
确定
您已领取过此优惠
确定
验证码错误
预售证号
深房许字(2016)龙岗023号
客服小Q
公司名称:
深圳分公司
信用代码:
91440300550318822G
房源已预约
继续看房
查看预约
是否拨打号码异常?
9.5折钜惠
金地龙城中央距离3号线龙城广场站约500m,项目通燃气、带阳台,带全屋木地板、空调、热水器精装修交楼可商可住可租可办公。目前在售64-81㎡公寓,均价仅32000元/平米!
优惠信息将发送至您的手机
+
86
获取验证码
确认获取
变价通知
填写手机号,当楼盘价格有变动时会及时发送信息到您的手机通知您
+
86
确定
直接联系售楼处
变价通知
当楼盘价格有变动时会及时发短信到您的手机号上哟~
楼盘动态订阅
订阅楼盘动态后,楼盘的最新消息将会第一时间由短信形式通知您
+
86
确定
订阅通知
重新获取
确定
楼盘动态订阅成功!
关闭
楼盘订阅提醒
订阅楼盘动态后,楼盘的最新消息将以短信的形式发送到您的手机号上哟~
中国 +86
中国香港 +852
中国澳门 +853
中国台湾 +886
楼盘信息
开
发
商:
杭州运河集团投资发展有限公司
开盘时间:
2014年建成
交房时间:
2014年建成
物业类型:
写字楼
装修状况:
毛坯
占地面积:
容
积
率:
0.00
绿
化
率:
0%
停
车
位:
640
物业公司:
南都物业服务集团股份有限公司
* 以上信息均由开发商提供,购房时以政府部门登记备案为准,请谨慎核查。